Tech Cube Zero

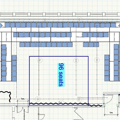
TC0 (TechCube 0) is the ground floor of the TechCube tower at the North West corner of the Summerhall site. Brand new for 2023, TC0 is in horseshoe configuration and seats 96. This space will lend itself well for performances that need an intimate feel, but also a larger capacity. There is unstepped access to this space.Stage: 6m wide x 5m deep, further 1m of surrounding aisle space. Flat floor covered in black vinyl dancefloor. 2.6m clearance to lowest fixed point above stage, 2.8m to LX bars.